
Residential
2019 - Ajman, UAE
MARSA RESIDENCE 2
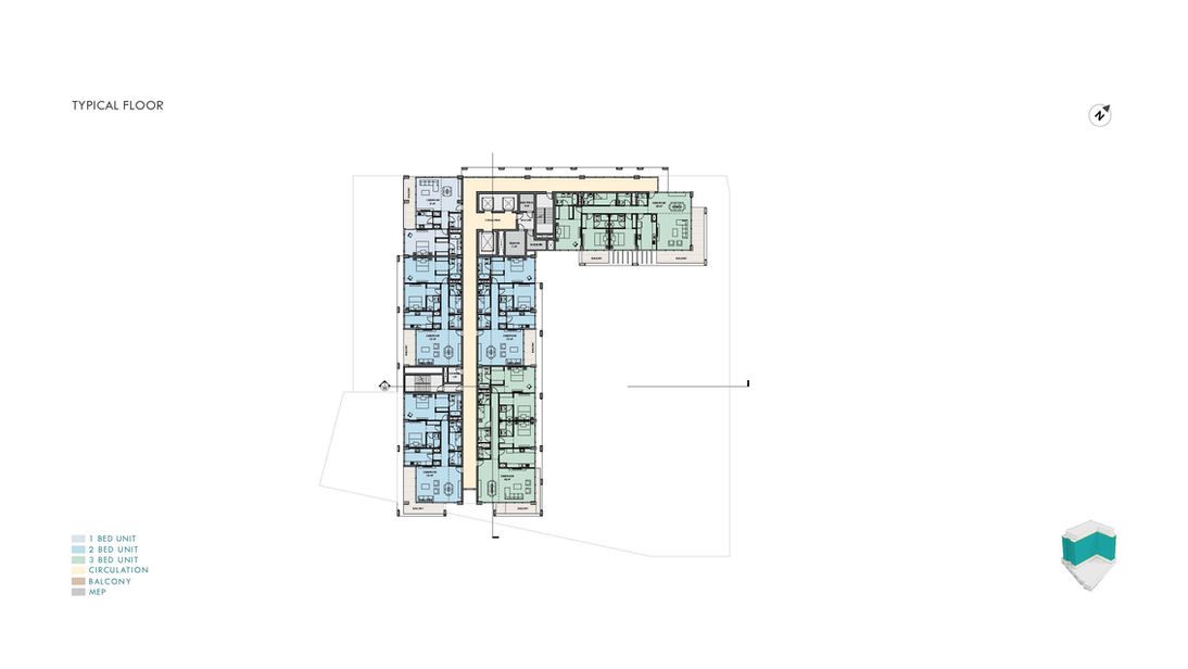
The Marsa Residence 2 is envisioned as a single residential tower comprised of B1+ G+ Podium + 9 Levels of apartments It is designed to maximize marina and sea views to most of the apartments, within a facade design that relates to the marina setting.
The project has underground, podium and at grade parking lined with entrance lobby as well as retail units facing the street and town houses facing the marina promenade. Podium level is at +7 meters and house a resort style pool, garden and amenities area for residents, including a multi-use room and gym.
There is an additional roof space for residents use for private evening events or early morning yoga, capturing amazing views to the sea.
Project developed at CRTKL Dubai office
FACTS & FIGURES
AREA
HEIGHT
APPOINTMENT
COLLABORATIONS
Plot size - 2,681 sqm
GFA - 11,010 sqm
B + G + P + 9
43 meters
2019
Interior Design - Luli Fisher
Landscape Design - WAHO










